Set on a manageable 350m² (approx.) allotment, this neatly presented brick home offers an attractive low-maintenance lifestyle.
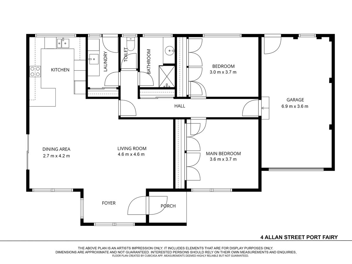
The open-plan living area welcomes you with a neutral palette, abundant natural light, and a practical layout. The well-appointed kitchen features generous storage, bench space, a double sink, pantry, dishwasher, and overlooks the adjoining dining area.
Two spacious bedrooms with built-in robes are serviced by a central family bathroom and a separate WC. Additional highlights include split-system heating and cooling, hallway storage, and a well-equipped laundry with storage and direct external access.
Outside, the secure yard provides a private outdoor space with pedestrian access to the front of the property. A single integrated garage, along with driveway parking for additional vehicles, completes the offering.
Positioned in a quiet street, the property offers convenient access to medical facilities, schools, and all the town’s amenities.
Features
Floor Plan
Floorplan 1






















